Дом ГРЕЙ с баней
+7 (982) 778-7270

Качественные дома в Тюмени

Дом ГРЕЙ с баней

58,7 м2

Дом ГРЕЙ с баней

Скважина и септик в подарок при покупке дома

 
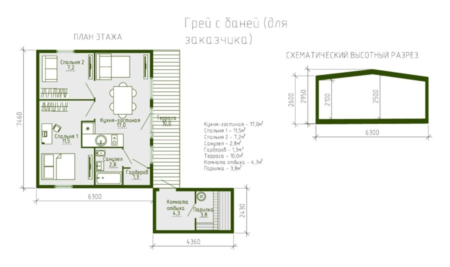
площадь

59

 
срок строительства

45 дней

 
стоимость

5 100 000

Не используются металлические профили для фасадов, только натуральное дерево. Это даёт возможность с комфортом проводить время в доме и на террасе.

Внутренняя отделка выполняется со скрытой электрической и сантехнической разводкой.
Устанавливаются осветительные приборы, розетки, выключатели, тёплые полы по всему дому, панорамное остекление с выходом на террасу.

ПЛАНИРОВКа дома

Дом Грей

Площадь от 58.7 м2

от 5.100.000 руб

БЕЗ первоначального взноса!

Отсутствие комиссии банка и издержки по отсутствию ПВ (первоначального взноса)

ипотечный калькулятор

укажите параметры и рассчитайте ежемесячный платеж

5 100 000 5 100 000
20% 100%
1
1 30
* Расчёты не являются публичной офертой. Конечные условия кредитования определяются банком после рассмотрения заявки
Пожалуйста, укажите телефон
Согласен на обработку персональных данных
Необходимо согласие

Дом ГРЕЙ с баней комплектация дома:

Это фундамент из металлических свай с лопастями на концах. Сваи вкручивают в землю как большие шурупы. Они изготавливаются из легированной стали высокого качества. Преимущества свайно-винтового фундамента: высокая прочность — он не растрескивается как бетонный, не боится снега, дождя и мороза, простота возведения — для его монтажа не требуется копка траншей и котлованов, невысокая цена

Основу каркасного дома составляют сухие строганные доски, из которых изготавливаются стойки, косые и поперечные элементы стен. Обязательно проходит термическую обработку, благодаря которой из древесины удаляется лишняя влага.
Преимущества материала: высокая плотность, незначительная усадка каркаса, экологичность, ускорение темпов строительства

Деревянная отделка.
Это отделка внешних стен натуральным деревом, который предварительно обработан лаком.

Стены, изготовленные из дерева, не выполняют несущей функции и служат только для разделения помещений. Деревянные межкомнатные стены могут быть сплошными и каркасно-обшивными. Последние отличаются меньшим расходом материала и лёгкостью конструкции.
Преимущества деревянных перегородок: изготовлены из экологичного материала, хорошо сохраняют тепло в помещениях, выдерживают навесные приспособления массой до 150 кг

При монтаже деревянных междуэтажных перекрытий между стенами укладывают толстые деревянные балки, на которые устанавливают лаги. На лаги, в свою очередь, монтируется пол.
Плюсы деревянных перекрытий: простота возведения — для монтажа не нужно привлекать специальную технику, малый вес конструкции, большой выбор пиломатериалов, экологичность, низкая теплопроводность

Среди других преимуществ
• небольшой вес, то есть материал не оказывает давления на перекрытия
• простой монтаж
• прочность и эластичность

ОНЛАЙН КОНСУЛЬТАЦИЯ

получите больше информации о проекте
и задайте свои вопросы

НЕ НАШЛИ ПОДХОДЯЩЕЕ?

Укажите параметры дома, и мы подберем варианты в течение дня бесплатно

Пожалуйста, укажите телефон
Согласен на обработку персональных данных
Необходимо согласие
Написать в мессенджер