57 м2 Каркасный дом 2 спальни
Дом 57 кв.м.
57
да
6000000
Продается дом на участке, участок можете выбрать на выбор, на: на Велижанском (участок 10 соток) , Московском (5 соток) и Салаирском (5 соток) трактах.
Модульные дома — это не просто строения, они — воплощение мечты с заботой и вниманием к каждой детали. Для нас каждый клиент — не просто заказчик, а партнер в создании своего уютного дома. Мы вкладываем любовь и профессионализм в каждый этап производства, чтобы ваш дом стал идеальным пространством для жизни.
Ведь ваше удобство и комфорт — наш приоритет.
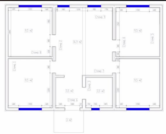
ПЛАНИРОВКа дома
Дом 57 кв.м. с участком
Площадь от 57.5 м2
от 6.000.000 руб
Дом 60 кв.м. без участка
Площадь от 60 м2
от 6.000.000 руб
ипотечный калькулятор
Дом 57 кв.м. комплектация дома:

Подход индивидуально не только к каждому клиенту, но и к каждому проекту! Чтобы создать пространство, полностью отражающее все ваши пожелания!

Используются материалы, сочетающие в себе высокое качество и заботу об окружающей среде. Используем только экологически чистые материалы, чтобы ваш дом был не только самым красивым, но и безопасным для вас и вашей семьи.
-
Монолитная плита - это единая железобетонная конструкция, расположенная под всей площадью дома на фундаментной подушке. • Универсальность по геологии оснований, хорошая несущая способность, высокая пространственная жёсткость, хорошие изоляционные характеристики, несложная технология возведения, долговечность.
-
Каркас из сухой строганой доски, сорт АБ, 45X145 45X195 мм. Утепление минеральной ватой: 200 мм пол, стены и кровля 150 мм
-
Двухкамерные стеклопакеты. ПВХ двери и окна с двухкамерными стеклопакетами, поворотно-откидные. Межкомнатные двери
-
Имитация бруса на стенах и потолке. Торцевые стены строганая доска 20X195. Ламинат на полу. СУ ПВХ плита в комбинации с имитатором бруса
-
Вся электрика: светильники, розетки, выключатели, электрощиток с автоматами. Разводка труб водопровода, канализации. Приточно-вытяжная вентиляция в каждой комнате.
ПОПУЛЯРНЫЕ ОБЪЕКТЫ С
ОТКРЫТЫМИ ПРОДАЖАМИ
Дом Скандинавский уют - 2

Дом Скандинавский уют -1

Компакт 27 лайт

А-Фрейм Хюгге

Дом с баней Драккар

Дом Хижина норда

СМАРТ 56 ПРО

Дом Приют Одина

СМАРТ 64 ПРО

Дома с участком и благоустройством

НЕ НАШЛИ ПОДХОДЯЩЕЕ?
Укажите параметры дома, и мы подберем варианты в течение дня бесплатно